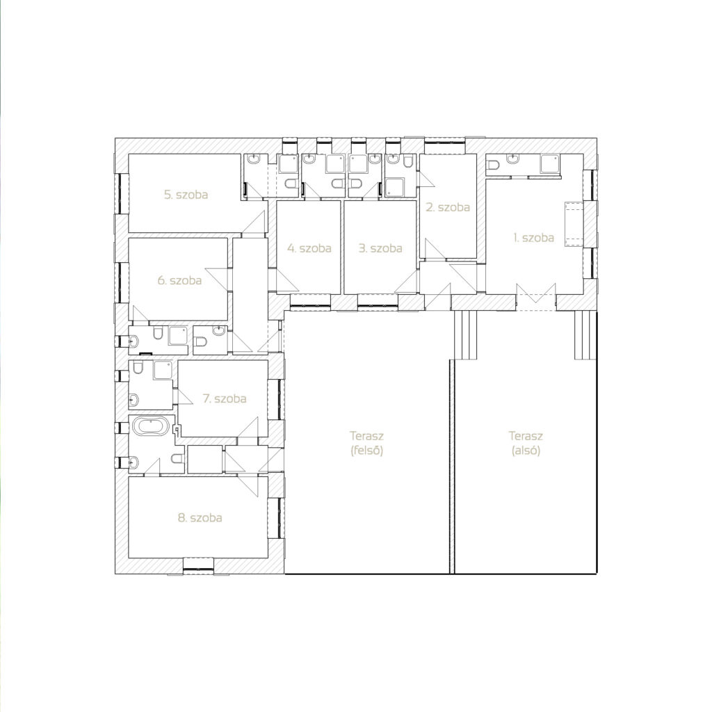
Az egykori kertészlak. A MAISON BOGArT szintén 3 bejárattal rendelkezik, melyekben összesen 18 fő részére tudunk szállást biztosítani. Az első bejárat folyosójáról nyílik 3 szoba, a második bejárat 3, a harmadik pedig 2 szobát rejt.
Számos szobából gyönyörű kilátás nyílik a kastélyparkra és magára a Festetics-Inkey kastélyra. A szobák berendezése ebben az épületben is tartogat meglepetéseket, hiszen hol máshol találkozhatnánk berendezési tárgyként kerítés mintázatú ágyvéggel, egy igazi kemencével vagy egy régies hangulatú fotólámpával? Hangulatos kikapcsolódást nyújt óriási teraszunk, ahol vendégeinknek grillezésre illetve bográcsozásra is lehetősége nyílik.
MAISON BOGArT 1-es szoba: régebben konyha volt, ennek emlékére különleges berendezési tárgyként megőriztük a téglából épült kemencét, amely a szoba dísze lett.
MAISON BOGArT 2-es szoba: kényelmes kanapéággyal, szép kialakítású szekrénnyel, zuhanyzós fürdőszobájával és parkra nyíló kilátásával csendes, pihenős szobát kínálunk vendégeinknek.
MAISON BOGArT 3-as szoba: fehér színvilágú, tágas szoba fotlámpával, régies szekrénnyel és modern fürdőszobával 2 fő részére.
MAISON 4-es szoba: teraszra néző, hangulatos színvilágú, viszonylag kis méretű szoba vintage bútorokkal, fotólámpával és zuhanyzós kialakítású fürdőszobával.
MAISON 5-s szoba: tágas, kényelmes, pótágyazható szoba akár 3 főre is, különlegessége a kastély felújításából származó tükör keret.
MAISON 6-os szoba: türkíz színvilág, klasszikus bútorzat és kényelem jellemzi, és a kerítésvéget utánzó ágyvég igazi különlegesség.
MAISON 7-es szoba: „sárga” szobánk kényelmes elhelyezést biztosít 2 fő részére, és a szépséges tulipános szekrény a szoba ékességének tekinthető.
MAISON 8-as szoba: egy franciaággyal és egy kanapéval ellátott tágas helyiség modern ágyvég kialakítással és tégies, lábakon álló káddal felszerelt fürdőszobával.
Idén szolgáltatásaink köre egy hangulatos mini wellness részleggel bővült, amely egy 6 fős jacuzzit, egy 6 fős kombinált szaunát és kellemes pihenőhelyiséget foglal magában, és a MAISON BOGArT alsó részén helyezkedik el, csodálatos kilátást nyújtva a kastélyparkra.
A területen wi-fi nem elérhető, háziállatokat csak előzetes egyeztetést követően fogadunk.


Kapcsolat
Kérdése van? Keressen minket bizalommal!













